Les modules préfabriqués : la clé d’une construction rapide et durable
Face à des défis croissants tels que la réduction des délais de construction, l’optimisation des…
Demandé un rappel
Veuillez nous contacter directement. Notre équipe est là pour vous aider.
Commencez dès maintenant
Veuillez nous contacter directement. Notre équipe est là pour vous aider.
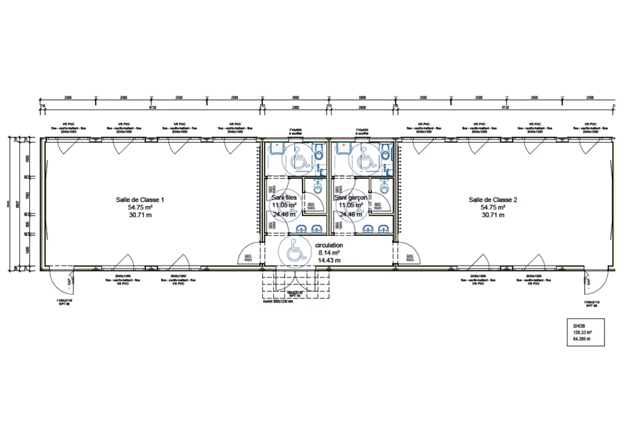
Je suis la solution clés en main de ProContain pour disposer très rapidement deux nouvelles salles de classe accompagnées de sanitaires pour les filles et pour les garçons.
Nous proposons en plus différentes variantes qui peuvent être étudiées selon vos souhaits, comme par exemple un bardage bois ou composite, ou une adaptation des équipements à la petite enfance.
Les situations et les besoins de vos écoles évoluent ( Accroissement des effectifs scolaires ; Nouvelles règles d’accueil des programmes REP et REP+ ; Vieillissement des bâtiments existants qui doivent être remplacés, ... ) et peuvent vous conduire à envisager la construction de nouveaux bâtiments ou de nouvelles salles de classe. Avec les écoles modulaires ProContain vous offrirez aux enfants et aux personnels les meilleures conditions de travail. Vous bénéficierez de délais de mise en œuvre courts et investirez dans des bâtiments durables et de qualité : nos écoles modulaires sauront répondre à vos exigences !
Régulièrement audités, nos bâtiments modulaires sont certifiés conformes aux règlementations de sécurité incendie, de performance acoustique, d’isolation thermique et de consommation énergétique. Exempts de substances nocives, les matériaux sont sélectionnés pour leurs propriétés écologiques et leurs labels, un gage de qualité irréprochable.
C'est tout l'avantage de nos solutions de construction hors-site de pouvoir vous livrer rapidement des salles de classe directement opérationnelles, confortables et sécurisées.
Notre équipe d'experts, implantée en Île-de-France, est réactive et à votre écoute pour vous apporter une réponse personnalisée.
Contactez Nicolas Rautureau au 06.11.98.52.75 ou .
Partager cet article