Retour à l'aperçu

Maison de santé pluridisciplinaire : l’atout de la construction hors-site

Les maisons de santé pluridisciplinaires, en plein développement, trouvent un partenaire de choix avec PROCONTAIN et la construction modulaire et hors-site. Explications avec le projet de la ville de Chambly.

Face à la difficulté croissante, notamment des petites communes, à accueillir des médecins et de façon plus générale des professionnels de santé, la réalisation d’une maison de santé s’impose de plus en plus comme une très bonne solution. Cela permet de palier à l’engorgement des hôpitaux et à la désertification médicale. Les professionnels de santé y trouvent là un moyen de ne plus travailler seuls et de ne plus avoir la charge des moyens et des locaux pour pouvoir se concentrer sur leur métier. De l’autre côté, les patients et les usagers trouvent, réunis à un même endroit et à proximité, tous les services dont ils ont besoin. Et, de plus, pour les uns comme pour les autres, les locaux sont pratiques, accueillants, et sécurisés.

Un projet municipal exemplaire : accès aux soins et qualité environnementale

C’est dans ce contexte que ProContain a réalisé un projet en collaboration avec le cabinet TAO architectes associés dans le cadre d’un appel d’offre de la ville de Chambly.

L’enjeu pour ce type de structures est d’offrir des prestations haut de gamme afin de séduire les professionnels de santé, leur apporter un environnement de travail irréprochable et de proposer des aménagements intérieurs de qualité pour l’accueil et le confort des patients.

C’est pourquoi ProContain est particulièrement bien situé sur ce marché en proposant :

  • Une excellente qualité des matériaux intérieurs et extérieurs ;
  • Une architecture intégrée et adaptée à l’environnement local ;
  • L’optimisation des espaces pour accueillir le matériel médical (plan de travail adapté, fauteuils spéciaux, salle de stérilisation, local de radiologie …)
  • Une qualité thermique RT2012 : Chauffage/climatisation régulés, traitement de l’air ventilation  par double flux
  • Un respect strict des normes : Règlementation incendie, ERP, accessibilité PMR.

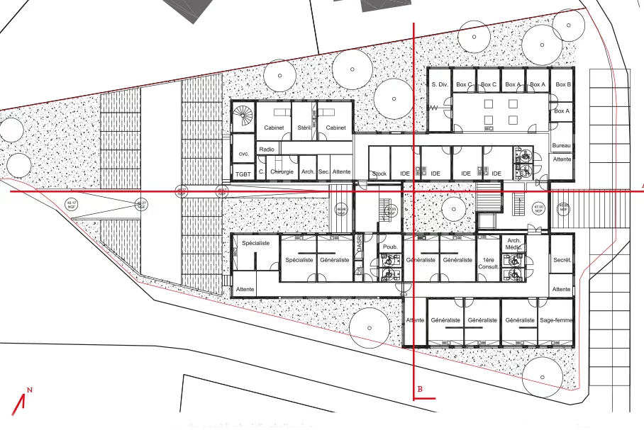
La maison de santé devait être ainsi en mesure de réunir dans les meilleures conditions médecins généralistes et spécialistes, sages-femmes, infirmières, kinésithérapeute, ostéopathe, pédicure, cabinet de psychologie, ainsi qu’un accueil centralisé et des espaces d’attente adaptés aux besoins.

Avec la conception bioclimatique de la construction et sa performance énergétique, l’accent est mis sur la qualité environnementale afin de minimiser l’empreinte écologique du bâtiment tant pour sa réalisation que pour son fonctionnement.

De nouveaux marchés qui valorisent la construction modulaire

Avec ce type de projet, nous voyons l’apparition et le développement de marchés globaux de performance intégrant les fabricants de structures modulaires dans la conception, la réalisation, l’installation et la maintenance de bâtiments modulaires. Cette nouvelle forme de marché valorise le concept même de la construction hors-site et toutes ses étapes de réalisation (études, usine, chantier, maintenance).

ILLUSTRATIONS | Vue de la rue, Vue de la parcelle, Plan des niveaux organisés RDC. | © PROCONTAIN / TAO architectes associés / INIMAGENABLE

Partager cet article


Autres articles